
Descrição
Moradia têrrea geminada situada na Moita, com acesso rápido à Ponte Vasco da Gama e a 15 minutos de Lisboa. Restaure a sua relação com a natureza graças a esta casa térrea inserida num lote de 2,500 m2, numa zona exclusiva de quintas. Todas as assoalhadas estão orientadas para o jardim e possuem janelas grandes para que possa desfrutar da natureza na sua plenitude. Aqui poderá desligar do mundo e relaxar.
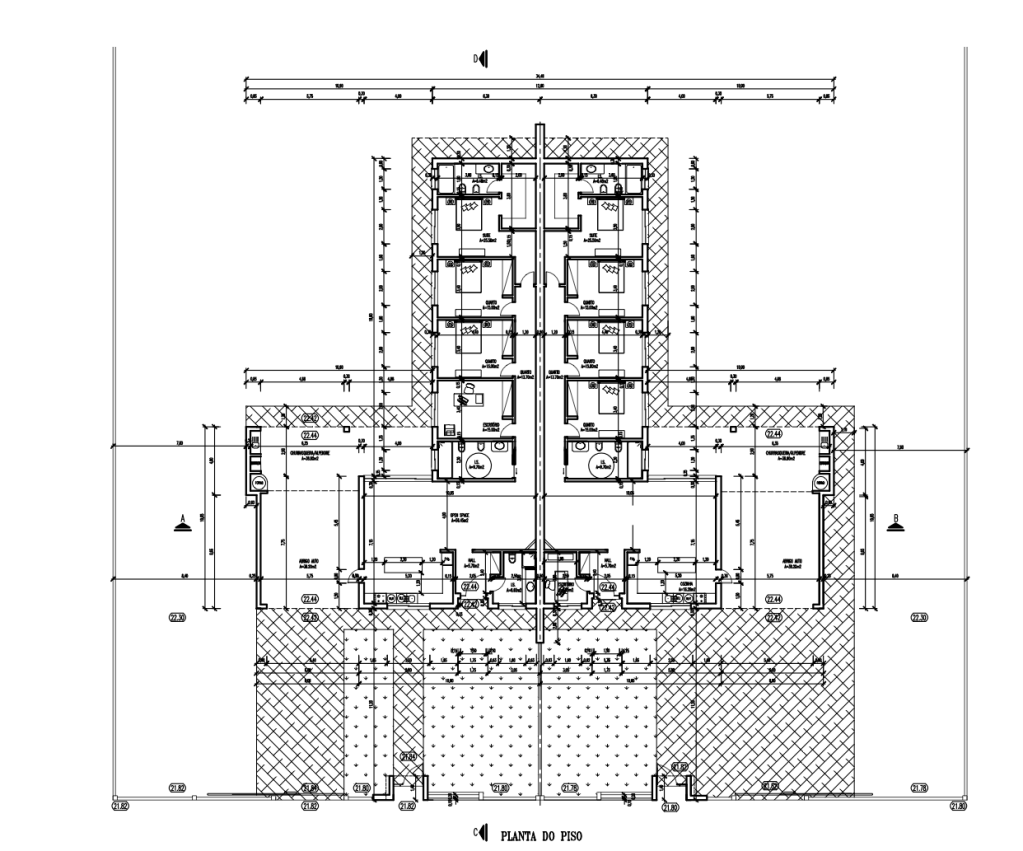
Casa com 200m2: 3 quartos espaçosos, uma suíte com closet, um escritório e três casas de banho. Open space com sala e cozinha. Cozinha e sala com acesso direto para o jardim verdejante e a piscina.
Construção tipo contemporânea que alia técnicas de construção tradicional às técnicas de construção modernas. Zona de telheiro auto e de barbecue exterior estão igualmente previstas no projeto.
Planta

Vista Exterior e Interior




Contacte-nos:
ImmobPrime
Quinta do Conde
Setúbal
912 888 347
immobprime@gmail.com